Tafernstraße 16, 4523 Sierning - Zwangsversteigerung
reedb-id: 1317837
#Einfamilienhaus #Zwangsversteigerungen #Neuzeug #Oberösterreich #SteyrLand #Österreich

Einfamilienhaus Neuzeug Zwangsversteigerung Österreich


















Einfamilienhaus
zwangsversteigerungen
Schätzwert, Verkehrswert € 190 000 (≈ TZS 538 736 000)
AT-4523 Neuzeug, Tafernstraße 16
Bundesland Oberösterreich, Österreich
Kontaktinformationen:
Versteigerungsdatum und -zeit: am 9.2.2026 um 9:00 Uhr
Versteigerungsort: Bezirksgericht Steyr, Saal A Erdgeschoss
Versteigerungsort: Bezirksgericht Steyr, Saal A Erdgeschoss
Finanzen
Versteigerungstermin 09.02.2026
538 736 000)
Schätzwert, Verkehrswert € 190 000 (≈
Flächen
Wohnfläche1 894,45 sq.ft
Grundstück0,11 acre
Beschreibung
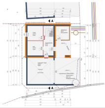
Bei der gegenständlichen Liegenschaft handelt es sich um ein Haus mit Kellergeschoss samt angebauter Garage, Erdgeschoss und Obergeschoss wobei die genaue Raumaufteilung aus den beigelegten Raumplänen hervor geht. Das Objekt befindet sich in den sogenannten Rohbau und wurde 2021 zum Bauen begonnen.
Vadium: 19.000,00 EUR
Geringstes Gebot: 95.000,00 EUR
Vadium: 19.000,00 EUR
Geringstes Gebot: 95.000,00 EUR
Lage
#Steyr-Land
Haftungsbeschränkung
Alle Angaben sind ca. Angaben und können von den tatsächlichen Werten abweichen.Die Daten zu diesem Objekt /Immobilie wurden manuell (nicht vom Anbieter) eingepflegt.
Für Vollständigkeit und Richtigkeit der Angaben kann keine Haftung übernommen werden.
Die aktuellen Daten entnehmen Sie gegebenenfalls von der angegebenen Seite oder setzen
Sie sich mit dem Anbieter in Verbindung.

Anzeigen